Scan to BIM Services for
Construction & Existing Buildings

Scan to BIM services convert reality capture data into accurate, structured BIM models that represent existing site conditions. This process bridges the gap between physical environments and digital project workflows by translating point cloud data into usable BIM geometry aligned with construction and coordination requirements.

Scan to BIM is commonly used on refurbishment, retrofit, and brownfield projects where reliable digital information is required to support design development, coordination, and documentation.

What Scan to BIM Represents

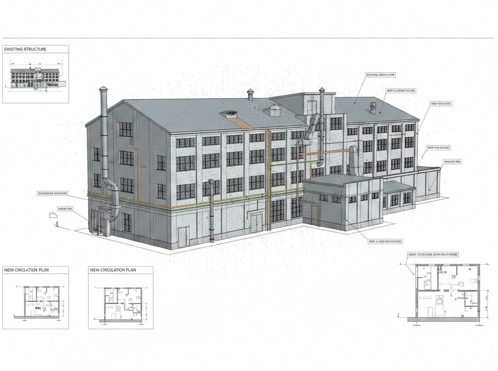
Scan to BIM modelling represents existing buildings and services based on verified site capture rather than design assumptions. The resulting BIM models reflect actual geometry, spatial relationships, and service layouts present at the time of scanning.

These models provide a dependable digital reference that supports coordination accuracy, reduces rework, and improves confidence when integrating new works into existing environments.

Scan to BIM Represents

When Scan to BIM Services Are Required

Scan to BIM services are typically required when projects involve existing structures with limited or unreliable documentation. They are widely used in refurbishment and upgrade projects where new systems must interface with existing building elements and services.

This service is also applied when accurate spatial coordination is critical before design development, fabrication, or construction activities begin.

Scan to BIM Services Are Required

Project Types That Use Scan to BIM

Scan to BIM is applied across commercial, industrial, healthcare, education, and residential buildings. It is particularly valuable in service-dense environments such as plant rooms, risers, ceiling voids, and operational facilities where dimensional accuracy directly impacts coordination outcomes.

The service supports both large-scale developments and smaller, technically complex spaces requiring precise modelling.

Integration With BIM and Coordination Workflows

Scan to BIM models are developed within BIM platforms to support coordination, documentation, and design workflows. The models may be used as coordination bases, reference files, or starting points for further modelling and design development.

By working from scan-based geometry, coordination activities are grounded in real-world conditions, improving alignment between proposed works and existing site constraints.

Integration With BIM and Coordination Workflows

Accuracy, Standards and Model Development

Scan to BIM models are developed to meet project-specific accuracy requirements and BIM standards. Model detail and accuracy levels are defined based on intended use, whether for coordination, documentation, or future refurbishment planning.

Outputs are prepared in formats compatible with BIM and CAD platforms, allowing seamless integration into existing project workflows.

Scan to BIM models

Relationship With 3D Scanning and As-Built Modelling

Scan to BIM services rely on reality capture data, typically generated through 3D scanning. The scan data provides the spatial foundation for BIM model development, ensuring geometry aligns with actual site conditions.

Scan to BIM models may also form the basis for as-built documentation, refurbishment planning, and coordination validation across future project stages.

Project Requirements & Next Steps

Scan to BIM services are engaged when accurate digital representation of existing conditions is required to support modelling, coordination, or documentation workflows. Where reliable site data is essential for informed project decisions, this service provides a structured and dependable approach.

What is Scan to BIM?

Scan to BIM is the process of converting 3D laser scan point cloud data into accurate, structured BIM models that reflect existing site conditions.

It eliminates assumptions by modelling from real-world data, reducing clashes, rework, and coordination issues during construction.

Architectural, structural, and MEP services can all be modelled based on scan data.

Revit and other BIM-compatible platforms are commonly used to deliver scan-based models.

Accuracy is defined based on project scope, intended use, and BIM execution plans.

Scan to BIM Services - FAQs

Contact

Office Address
12/121 Kerry Road, Archerfield, Qld 4108, AU

B&S Mech Design provides HVAC drafting and BIM services for commercial, industrial, healthcare, and residential construction projects, delivering compliant and build-ready documentation.

B&S Mech Design 2026. All rights reserved

At B & S MechDesign, we work alongside consultants, contractors, and builders to provide high-quality HVAC drafting and quantity take-off solutions. 

Contact Info
Office Address

12/121 Kerry Road, Archerfield, Qld 4108, Australia

UP
Call Now Button